地址:
江西省吉安市河东经济开发区新工业园(文翔路与河东大道交叉口)
电话:
青原项目介绍:
鼎超智造园位于吉安市井开区青原区河东经济开发区内,东面为河东大道,南面为晨详路,西面为庄塘路,北面为晨光路,园区内地势平坦,交通十分便利,距吉安站直线距离2.8公里,距吉水南高速互通直线距离9公里,园区总占地面积约47.83亩,总建筑面积约5.4万㎡,容积率1.5。本项目建筑用途符合“1+3+N”生产型企业,主要包含电子信息、生物医药大健康、新能源新材料、先进装备制造以及电子商务、文化创意、创客中心、信息咨询、软件设计等新经济新业态。依托河东经济开发区的区域优势以及便捷的交通条件,将打造一流产业园区。
![]()

青原项目(一期)效果图
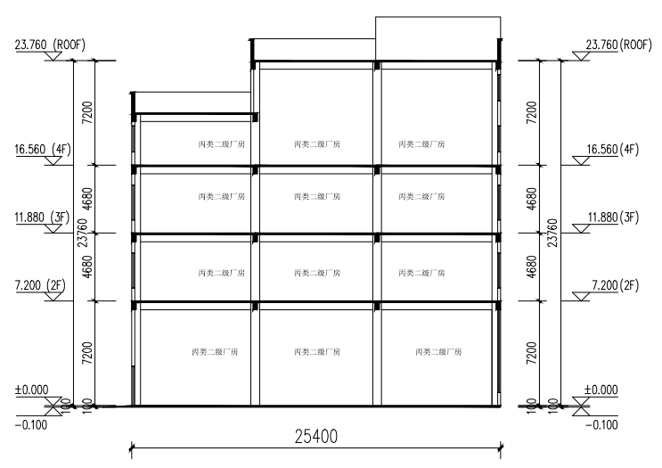
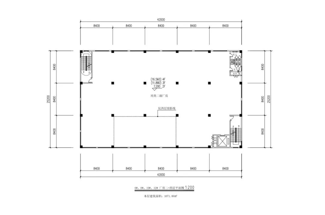
本项目主要引入围绕1+3产业电子信息,生物医药、先进装备制造、新能源新材料、电子商务、文化创意、创客中心等新经济新业态。本项目总规划占地104亩,分两期建设,一期约56亩。一期共规划有3栋厂房,厂房总面积约6.2万方。每栋厂房四层,一层层高6.5米,二、三层层高5.5米,四层层高5.1米,厂房产品面积在1000—1250㎡之间。
青原项目(二期)效果图
青原项目(二期)效果图
青原项目(二期)效果图
井开区“鼎超智造园”项目地处吉安市国家级经济技术开发区,隶属吉安市,地处江西省中部,版图呈长条形,周边与吉州、吉水、永丰、兴国、泰和五县(区)接壤。青原区与吉州区隔江相望,井冈山大桥、赣江公路大桥和吉安大桥把“一城两区”“一江两岸”的吉州区与青原区紧密相连,形成吉安城区的大环城路。项目毗邻井冈山大学,紧邻主干道—105国道,项目通过天玉大道东接广吉高速及105国道,北接抚吉高速、西接樟吉高速,距离吉安火车站2.7公里,吉安西站直线距离仅11.5公里,地理位置优越,交通便捷。
区域内高速公路网:
樟吉高速、抚吉高速、广吉高速
区域内高等级公路网:
105国道、青原大道
区域内铁路运输网:
京九线(货运)、昌赣高铁
航空运输:
距井冈山机场直线距离约41.8公里,
距赣州黄金机场直线约143公里,
距昌北机场直线距离约252公里。
水路运输:
紧邻赣江,但受航道条件限制,水路运输较薄弱,目前吉安港共分为新干、峡江、吉水、中心城区、吉安县、泰和、万安7个港区,预计到2035年货物吞吐量达到7650万吨
物流配套:
距离玛雅物流园1000米,长吉物流园600米,
商住配套:
周边有金田雅筑、东瑞公园学府、江山里、英伦联邦、学士府、井大阳光城、青云府、书香名筑等商住小区。
学校配套:
井冈山大学、十一中、城北学校、萃英学校、今人艺术培训学校、江西电子工业中等专业学校、吉安城华消防职业培训学校、吉安市科技技工学校等
产品户型:
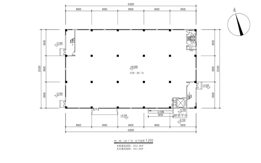
一期产品介绍:鼎超智造臻品超大空间灵活组合 :厂房面积约1000-1278㎡,开阔空间,空间灵活组合,50年独立产权,租售按需选择,可根据企业需求自由拓展,为企业发展需求量身定制。
二期产品介绍:鼎超智造臻品 超大空间 灵活组合 :厂房面积约688㎡-1068㎡-1148㎡,开阔空间,空间灵活组合,50年独立产权,租售按需选择,可根据企业需求自由拓展,为企业发展需求量身定制。
青原项目(一期)户型展示:
青原项目(二期)户型展示:
项目基础指标
项目实景图
吉水项目介绍:
吉水 “鼎超智造园”是吉安市星慧商业管理有限公司在吉安的第二个项目。项目地处吉水县工业园区,吉水隶属吉安市,地处江西省中部,赣江中游,吉安市东北部,东与永丰县接壤,南与青原区相连,西与吉州区、吉安县毗邻,北与峡江县交界。同时吉水位于吉安市重点打造的“吉泰走廊”之上,吉泰走廊位于江西中部,处于全国重要经济发展带——沿京九经济带上,是江西重要的综合交通枢纽,是连接长三角、珠三角和闽东南的重要节点。

吉水项目效果图
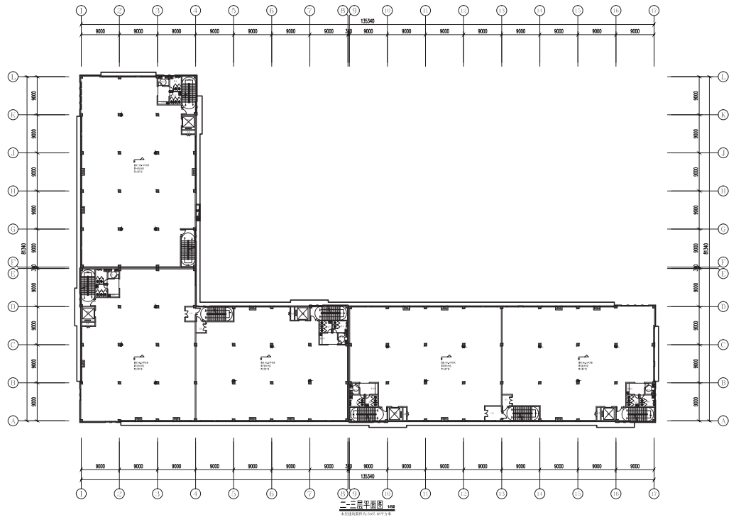
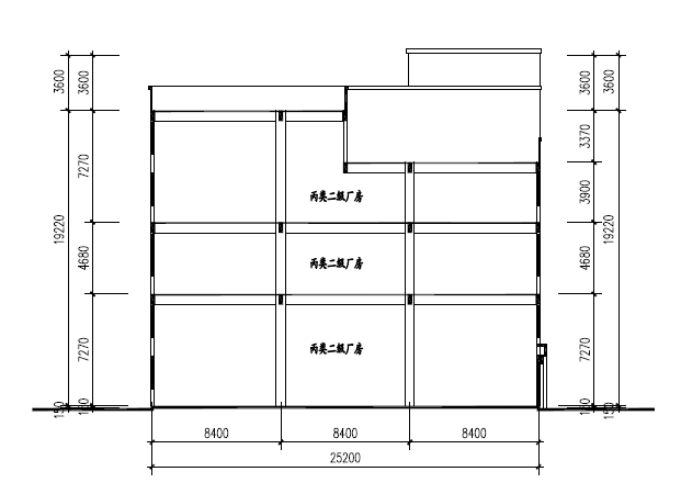
本项目主要引入围绕电子信息上下游产业,装备制造、智能终端,VR、物联网、数字应用、智能家居、数字经济等新经济新业态。总规划占地约300亩,分两期建设,一期约120亩。一期共规划有16栋厂房和一栋宿舍,厂房总面积约10万方。每栋厂房三层,一、三层层高7.27米,二层层高4.68米,厂房产品面积在600—1200㎡之间。
吉水项目效果图
区位优势:
项目毗邻群英水库,紧邻城市主干道—黄金大道,项目通过黄金大道西接樟吉高速,东连抚吉、广吉高速及105国道,距离吉水西站直线距离仅1.7公里,扼守吉水西大门,地理位置优越,交通便捷。
区域内高速公路网:
樟吉高速、抚吉高速、广吉高速
区域内高等级公路网:
105国道、黄金大道、313省道
区域内铁路运输网:
京九线(货运)、昌赣高铁
航空运输:
距井冈山机场直线距离约50公里,
距赣州黄金机场直线约160公里,
距昌北机场直线距离约200公里。
水路运输:
紧邻赣江,但受航道条件限制,水路运输较薄弱,目前吉安港共分为新干、峡江、吉水、中心城区、吉安县、泰和、万安7个港区,预计到2035年货物吞吐量达到7650万吨
物流配套:
距离吉发物流直线距离2公里,规划建设的京东物流也在工业园区内,可满足园区内企业的物流需求。
学校配套:
可为园区企业提供用工需求的井冈山经贸学校、吉水县吉田职业技术培训学校直线距离均在2公里左右
商住配套:
周边有金湖雅苑、金星社区、民盛苑、水岸鑫城、西江苑、丽景豪庭等多个商住小区;同时项目自带1栋7层宿舍楼,满足企业职工住宿需求。
产品户型:
户型方正,南北通透,面积约为1075和860㎡,厂房为丙类消防,层高4.68至7.27米,实得面积约为92%。